Im Vorfeld des 100-jährigen Ortsgruppenjubiläums wurden die Selbstkocherküche und der Jugendraum erneuert
Das Naturfreundehaus Kappelberg mit 25 Betten in sechs Zimmern steht gut zehn Kilometer östlich von Stuttgart und bietet einen herrlichen Ausblick ins Remstal.
Im Vorfeld des 100-jährigen Ortsgruppenjubiläums, das die NaturFreunde Fellbach über das ganze Jahr 2024 mit vielen tollen Veranstaltungen, Aktionen und Festen feiern, sollten auch der Jugendraum und die Selbstkocherküche modernisiert und so attraktiver für Gäste gemacht werden.
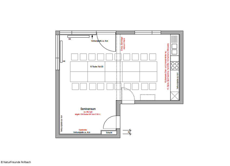
Letztlich wurden sogar beide Räume zusammengelegt und dabei komplett neu aufgebaut. Denn der Jugendraum schien immer zu klein und die Selbstversorgerküche immer zu groß. Also wurde einfach die Wand zwischen beiden Räumen entfernt und ein großer, flexibler Raum geschaffen. So gibt es nun nicht nur eine neue Küche, sondern auch ein großzügiges Raumangebot etwa für große Tagesseminare.
So lief die Modernisierung
Durch die ruhige verkehrsfreie Lage am Waldrand, den großen Spielplatz und die Tischtennisplatten ist das Naturfreundehaus Kappelberg (M 16) sehr gut geeignet für Familien mit Kindern sowie Jugendgruppen, die die Ruhe und den großen Seminarraum für Workshops schätzen. Wandernde und Spaziergänger können sich am Wochenende auf warme, kalte und auch süße Speisen im Naturfreundehaus freuen.
www.M16.naturfreundehaus.de
Schon im Vorfeld der Bauarbeiten hatten sich Mitglieder und Freunde bereit erklärt, einige Arbeiten selbst zu übernehmen. Und Ende Oktober 2023 begannen dann die konkreten Baumaßnahmen. Zuerst wurde die alte Küche ausgebaut, die Kacheln und die Holzdecke entfernt, der Bodenbelag rausgerissen und der Bauschutt abtransportiert. Das passierte alles in Eigenleistung.
Die Roh- und Trockenbauarbeiten übernahmen dann aber qualifizierte Handwerker. Diese Arbeiten umfassten unter anderem die Entfernung der Wand zwischen dem Jugendraum und der Selbstversorgerküche. Ein Statiker, der seine Expertise übrigens auch in Eigenleistung zur Verfügung stellte, beobachtete die Abbrucharbeiten. Dabei stellte er leider fest, dass die geplante Sicherung der Decke bis zum Einbau der Stahlträger nicht ausreichen würde. Tatsächlich musste letztlich der gesamte Raum abgestützt werden.
Einige ungeplante Aufwände
Ein weiterer ungeplanter Aufwand entstand durch das unterschiedliche Niveau der beiden zu verbindenden Räume. Stellenweise betrug der Niveauunterschied mehr als zehn Zentimeter. Glücklicherweise füllte dann ein Estrichverleger kurzfristig den gesamten neuen Raum auf. Danach konnte mit dem Innenausbau begonnen werden. Die Stahlträger wurden verkleidet, die Wände gestrichen und die Decke befestigt. Eine Wand wurde freigelassen, um in Eigenleistung eine rustikale Holzwand anzubringen.
Die Elektroarbeiten, einschließlich der Installation von Steckdosen, Lichtschaltern und der Verkabelung für die elektrischen Rollläden sowie die multimediale Ausstattung wurden von Fachleuten durchgeführt, um die Sicherheitsstandards zu gewährleisten. Ein Fachmann verlegte auch den neuen Vinylbodenbelag in Holzoptik. Die Küche wurde danach wieder in Eigenleistung eingebaut, zudem die Spülmaschine angeschlossen sowie ein leistungsfähiger Durchlauferhitzer.
Der neue Raum ist nun sehr groß, hat eine Küchenzeile mit modernen Küchengeräten, eine Schallschutzdecke, eine eingebaute Leinwand, einen Beamer sowie WLAN. Und die NaturFreunde Fellbach sind sehr stolz auf ihre modernisierten Räume.
Gute Kombination aus Eigenleistungen und professioneller Unterstützung
In der Rückschau hat gerade die Kombination aus Eigenleistungen und professioneller Unterstützung zu einem erfolgreichen Verlauf des Umbauprojekts beigetragen – auch dank des ehrenamtlichen Einsatzes von Architekt, Statiker und Bauleiter aus der Ortsgruppe.
Die aktive Beteiligung von Vereinsmitgliedern ermöglichte Kosten zu reduzieren. Und die Zusammenarbeit mit Fachleuten gewährleistete die Qualität und Sicherheit der durchgeführten Arbeiten.








